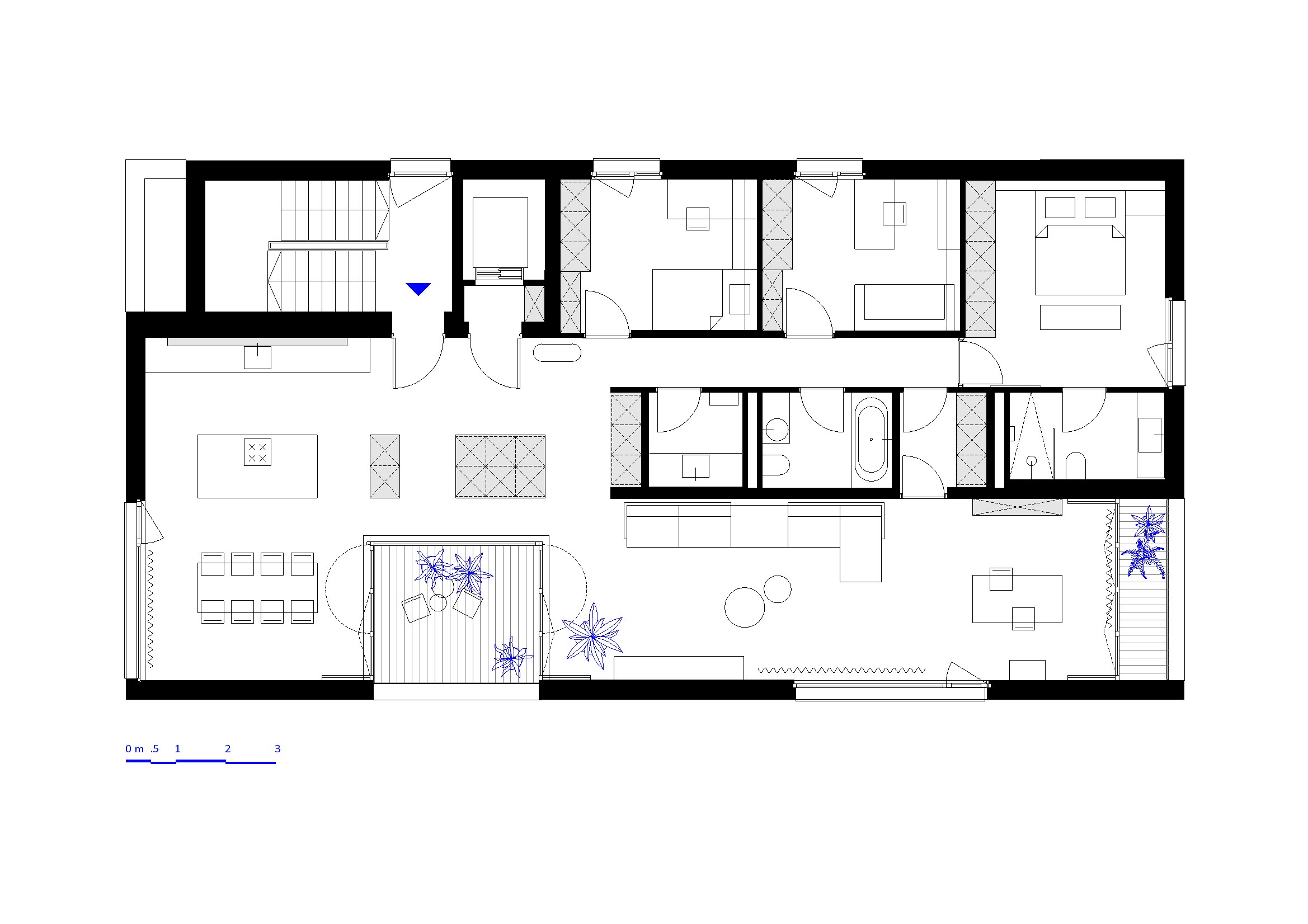
Stanovanje meri 170 m² in zavzema celotno nadstropje elegantne stanovanjske stavbe iz leta 2020. Njegova prostornost je poudarjena z odprto zasnovo, ki dnevne prostore med seboj niza enega poleg drugega, brez jasnih mej. Ob vstopu v stanovanje se takoj opazi sodobna razporeditev in premišljeno usmerjanje pogledov.

Od vhoda se prostor odpira proti loži, kar je naročnikom ob nakupu vzbujalo občutek prevelike izpostavljenosti, hkrati pa prostora niso želeli pretirano zapreti in s tem izgubiti njegovih ključnih kvalitet. Rešitev smo našli v dveh prostostoječih omarah, ki z videzom in funkcijo členijo prostor. Ena izmed njiju je obdana z ogledali, kar njeno prostornino na pogled zmanjša in ustvari zanimivo igro odsevov.

Pri izbiri barv in gradiv smo sledili željam naročnikov, naj stanovanje deluje sproščeno, udobno in ne pretirano zadržano. S pretežno belimi stenami in izborom parketa smo vzpostavili svetel osnovni ton stanovanja, na katerega smo nato dodajali barvno paleto. Dva večja elementa v prostoru sta izrazito barvna. Močnejši barvni poudarki zažarijo tudi v manjših kosih pohištva in svetilih.

Postavitev kuhinje je bila poseben izziv, saj so bile instalacije sprva pripravljene za precej običajno razporeditev: nizke in visoke enote zložene ob steni ter otok. Visoke omare ob steni pa se niso najbolje skladale z lahkotnostjo odprtega dnevnega prostora. Želeli smo, da kuhinja – kljub razkošnim delovnim in shranjevalnim površinam – deluje drugačno, da na prvi pogled niti ne bi opazili, za kateri prostor gre. Kuhinjske elemente smo razporedili v tri različne, a skladne kvadre: visok in ozek stolp v lesu, dolg nerjavni jekleni pult s predali v aluminiju z drobnim reliefom ter enovit otok v temno bordo barvi.

Prostor zaključuje jedilnica v toplih tonih: hrastova miza, usnjeni stoli v barvi konjaka, stena v nežno laneni barvi in drobne medeninaste viseče luči, ki nad mizo delujejo kot nakit.

Električno napeljavo po stropu in stenah smo glede na prvotno zasnovo prilagodili novi prostorski razporeditvi. Projekt osvetlitve je tako popolnoma prilagojen zasnovi notranje opreme.

Drugi večji barvni poudarek, kot protiutež otoku, je umeščen v dnevno sobo in sestavljen iz dveh delov – omare v niši in tapete. Ker so naročniki že od začetka želeli uporabo tapet, smo jo umestili na najdaljšo steno stanovanja – 11 metrov dolg del dnevne sobe. Zaradi močnega grafičnega učinka tako velike površine smo izbiri posvetili veliko pozornosti. Končna rešitev je prelivajoča se barvna tapeta – barvni gradient, ki se iz intenzivne temno modre prelije v belo. Vogal dnevne sobe, kjer je barva rebraste omare enaka barvi tapete, tako deluje kot poudarjen kubus, ki v daljavi izginja. Po meri narejena tapeta tvori ozadje različnih namenov rabe dnevne sobe. Zelo dolg in razmeroma ozek dnevni prostor (11 × 4 m) smo programsko razdelili v dva dela, tapeta pa to členitev tudi po videzu podkrepi.

Na koncu prostora se nahaja delovni kotiček z dvižno mizo, ki deluje na hidravliko in ne potrebuje elektrike. Postavitev omogoča, da lahko otrok piše domačo nalogo, medtem ko starši opravljajo službene obveznosti. Ta kotiček je lahko tudi prostor za ustvarjalne dejavnosti. Dopolnjuje ga dvižna luč bratov Castiglioni iz petdesetih let prejšnjega stoletja, v zeleni barvi.

Preostanek prostora je opremljen z dolgim kavčem, ki je z leseno mizico po namenu rabe razdeljen na dva dela: vogalni del za druženje ter vzdolžni del za gledanje filmov in poslušanje glasbe. Stensko premično svetilo doseže večino sedežne garniture. Kavč je tople svetlo sive barve, preproge so v sivo-črnih odtenkih z izrazitim grafičnim vzorcem, klubske mizice so lesene, komoda, nad katero se vsebine projicirajo s projektorjem, pa v živih barvah.

Loži, ki se lahko s panoramskimi okni popolnoma odpreta, razširita poglede čez celotno dolžino stanovanja in še dlje, ter prostor povežeta z zelenjem in zunanjostjo. V večji od lož smo s steklenimi mizicami in lahkimi kovinskimi stoli ustvarili skoraj prosojen in lahkoten ambient, kjer pridejo lončnice še posebej do izraza.

Del stanovanja, kjer se nahajajo spalnice in kopalnice, je ohranil prvotno razporeditev. Vsi prostori so urejeni umirjeno, v osnovnih barvah, da stanovalce pomirijo in ustvarijo občutek zavetja. Barvni poudarki so prisotni le v drobnih kosih opreme v sobah. V tem delu stanovanja se stanovalci lahko umaknejo od vsakdanjega vrveža in se sprostijo. Pohištvo je leseno, omare pa so zasnovane tako, da so navzven svetle, kremno bele, v notranjosti pa razkrivajo toplino lesa.




Lokacija
Ljubljana

Površina
170 m2

Program

projekt notranje opreme  


Projekt
izvedeno

Leto načrtovanja
2021

Leto izvedbe
2024

Investitor
zasebni

Fotograf
Aleš Rosa